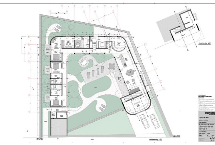
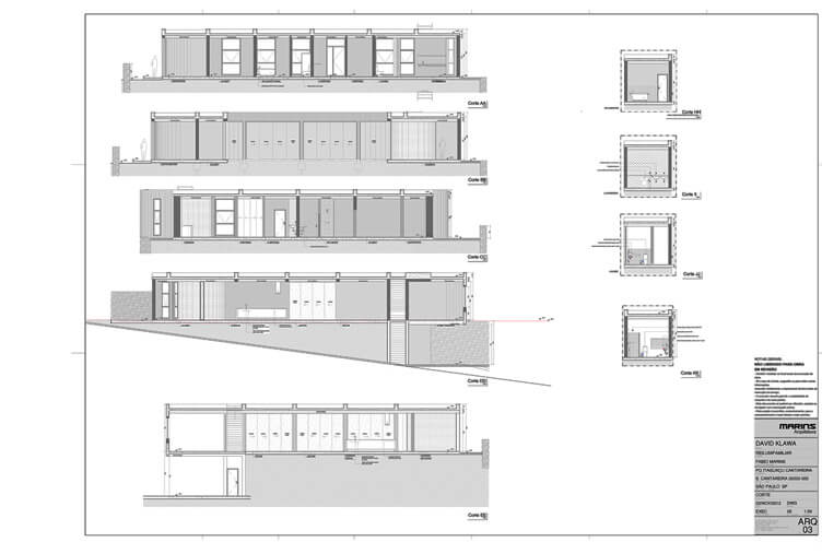
Klawa
Serra da Cantareira - São Paulo - SP
2014
Residêncial
Projeto residencial feito pelo Arquiteto Fabio Marins.
Voltar aos projetos