Corazon Filmes
Alto da Lapa São Paulo SP
2016
Comercial
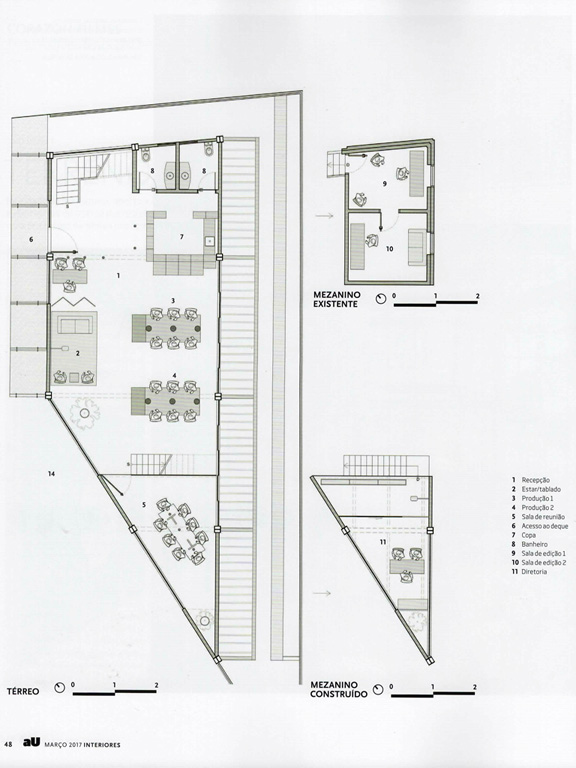
Projeto corporativo feito por Fabio Marins para a produtora de filmes publicitários Corazon.
Fotos:Alessandro Guimarães
Voltar aos projetos